Landscapes园林景观

清远·倾国清城商业广场改造

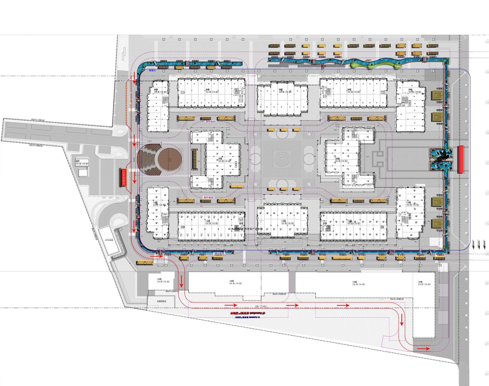
项目概况

  • 设计单位:广东大宸建筑设计有限公司
  • 建设单位:清远市胜利雅居置业发展有限公司
  • 项目地点:广东省清远市
  • 项目规模:项目面积:30万m²

清远·倾国清城商业广场改造

返回顶部